Проект одноэтажного дома Миракл 125
Дом подходит для:
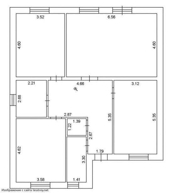
Площадь
125 м 2
Размер дома:
14,3х12,4
Этажей:
1
Спален:
3
Санузел:
2
Гараж:
Нет
Баня:
Нет
Терраса:
Нет
Панорамные окна:
Да
Мастер-спальня:
Нет
Планировка
Фасады
О проекте
Проект, где нет случайных деталей. 125 м² жилой зоны подойдут как для семьи, так и для пары. 89 м² — пространство для свободы и личных решений. Комфортное пространство с 2 санузла. Одноэтажная удобная планировка обеспечивает практичное распределение комнат. Керамоблока делает дом надёжным при любой погоде. металлочерепица придаёт дому выразительность и надёжность.Характеристики
- Общая площадь: 125 м2
- Жилая площадь: 89 м2
- Количество этажей: 1
- Гараж: нет
- Площадь кровли: 128 м2
- Отделка: Без отделки
- Фундамент: Дома с железобетонным свайным фундаментом
Материалы и перечень работ
- Монолитная железо - бетонная плита 180 мм на ребрах жесткости 400х400 мм c обратной засыпкой
- Бетон марки М300 (B22,5), сертифицированный, выравнивание по СНиП, виброусадка
- Засыпка основания под ребра жесткости, песок 200-250 мм (H), гидроизоляция
- Армирование плиты в 2-слоя арматуры d12мм «рифлен», ростверк жесткости d12мм «рифлен», вязка по проекту КЖ на основании данных о грунтах и нагрузке дома
- Закладные под инженерные коммуникации (электрика, канализация, водоснабжение)
- Внешние стены: газобетонные блоки YTONG 375 или керамические блоки POROTHERM 38 Thermo
- Внутренние несущие стены и перегородки: газобетонные блоки YTONG 375
- Монтаж стен по проекту, рабочий проект КЖ
- Оригинальные оконные перемычки, термо вкладыши
- Работы по заливке армо – пояса и гидроизоляции
- МЕТАЛЛОЧЕРЕПИЦА GRAND LINE
- Стропильная система: доска обрезная 50*200мм (сосна,ель)
- Антисептирование огне-био защита
- Система обрешетки / Контробрешетки
- Пленки: паро-гидроизоляции
- Окна REHAU с 2-х камерным стеклопакетом (3 стекла)
- 3-х камерный оконный профиль - 60 мм
- Доборные комплектующие: подоконник, отлив
- Разводка скрытой электрики в гофротрубе (пожаробезопасно)
- Разводка системы канализации (от 7 точек)
- 2-ух контурный котел
- Разводка системы отопления (2-ух трубная система, от 12 точек)
- Разводка системы холодного/горячего водоснабжения (тройниковая, от 12 точек)
- Штукатурка стен согласно дома Короед/ Шуба
- Работы по облицовке клинкерной плитки
- Устройство оконных и дверных косяков
- Доставка, разгрузочно–погрузочные работы
- Установка внутренних не несущих перегородок, раскладка труб и кабеля
- Монолитная железо - бетонная плита 180 мм на ребрах жесткости 400х400 мм c обратной засыпкой
- Бетон марки М300 (B22,5), сертифицированный, выравнивание по СНиП, виброусадка
- Засыпка основания под ребра жесткости, песок 200-250 мм (H), гидроизоляция
- Армирование плиты в 2-слоя арматуры d12мм «рифлен», ростверк жесткости d12мм «рифлен», вязка по проекту КЖ на основании данных о грунтах и нагрузке дома
- Закладные под инженерные коммуникации (электрика, канализация, водоснабжение)
- Внешние стены: газобетонные блоки YTONG 375 или керамические блоки POROTHERM 38 Thermo
- Внутренние несущие стены и перегородки: газобетонные блоки YTONG 375
- Монтаж стен по проекту, рабочий проект КЖ
- Оригинальные оконные перемычки, термо вкладыши
- Работы по заливке армо – пояса и гидроизоляции
- МЕТАЛЛОЧЕРЕПИЦА GRAND LINE
- Стропильная система: доска обрезная 50*200мм (сосна,ель)
- Антисептирование огне-био защита
- Система обрешетки / Контробрешетки
- Пленки: паро-гидроизоляции
- Окна REHAU с 2-х камерным стеклопакетом (3 стекла)
- 3-х камерный оконный профиль - 60 мм
- Доборные комплектующие: подоконник, отлив
- Разводка скрытой электрики в гофротрубе (пожаробезопасно)
- Разводка системы канализации (от 7 точек)
- 2-ух контурный котел
- Разводка системы отопления (2-ух трубная система, от 12 точек)
- Разводка системы холодного/горячего водоснабжения (тройниковая, от 12 точек)
- Штукатурка стен согласно дома Короед/ Шуба
- Работы по облицовке клинкерной плитки
- Устройство оконных и дверных косяков
- Доставка, разгрузочно–погрузочные работы
- Установка внутренних не несущих перегородок, раскладка труб и кабеля
Что еще входит в стоимость:
Отправьте свои контакты и мы расчитаем вам смету
Скорее всего вам подойдут следующие проекты домов:
Дом подходит для:
Проект одноэтажного дома Дом из керамоблоков дом 1 этаж / 110 кв. м
Семья с одним ребенком
Дом подходит для:
Дом подходит для:
Проект одноэтажного дома ТКБ-145-1
Семья с двумя детьми
Дом подходит для:
Дом подходит для:














