Проект двухэтажного дома Лях
Площадь
70 м 2
Размер дома:
6x7
Этажей:
2
Спален:
3
Санузел:
0
Гараж:
Нет
Баня:
Нет
Терраса:
Нет
Панорамные окна:
Нет
Мастер-спальня:
Нет
О проекте
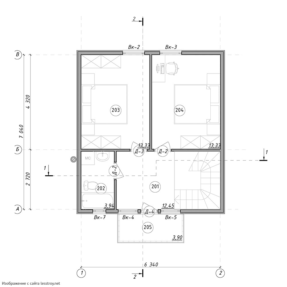
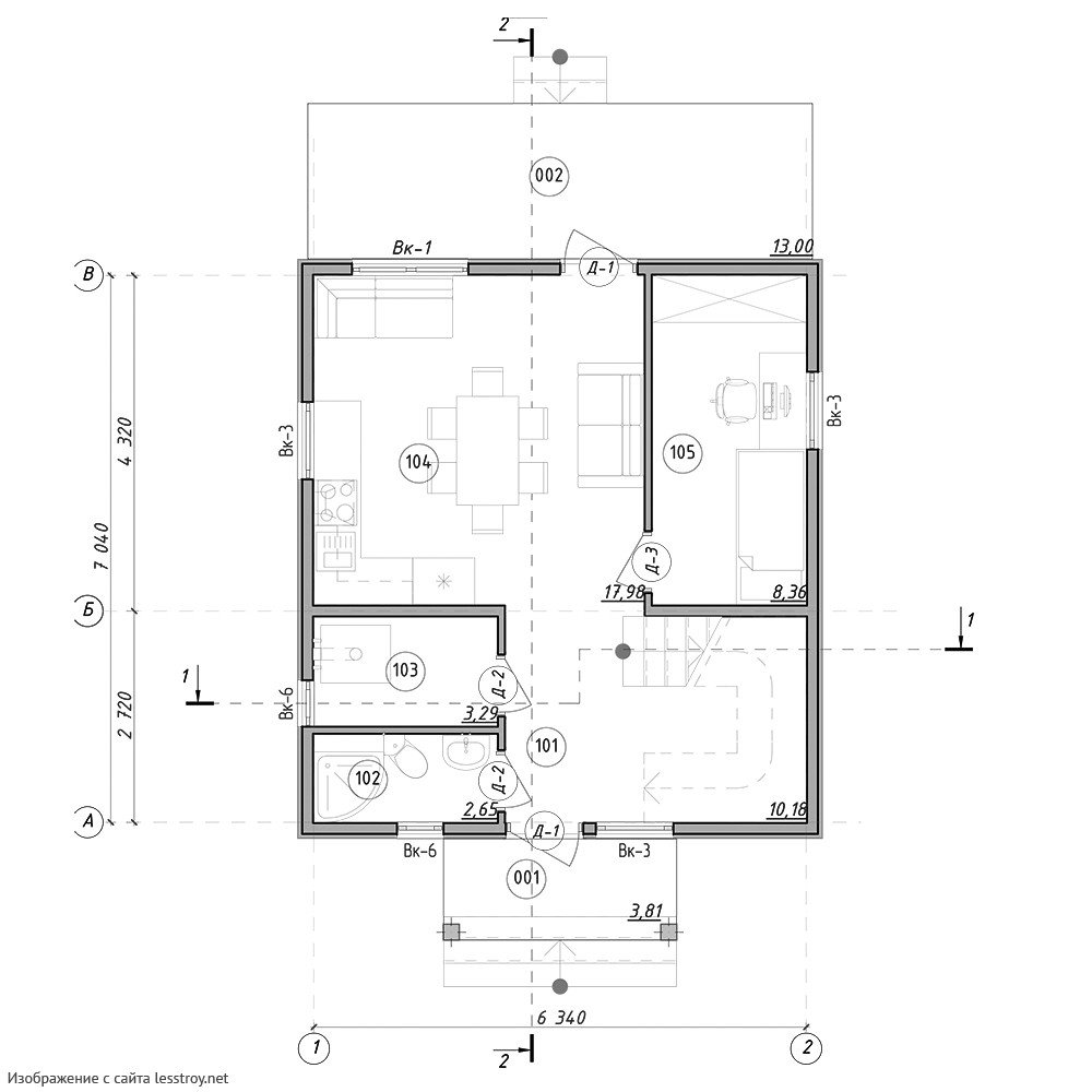
Пространство организовано для комфортного проживания.Площадь 102 м² — оптимум для тех, кто ценит порядок и воздух. Материал кровли — металлочерепица, что добавляет зданию индивидуальность. Бруса делает дом надёжным при любой погоде. Дом спроектирован в духе дома в классическом стиле.Характеристики
- Общая площадь: 70 м2
- Количество этажей: 2
- Стиль, разновидность: Дома в ином стиле
- Форма: Прямоугольные дома
- Тип кровли: Дома с двускатной крышей
- Отделка: Без отделки
- Размер: 6x7














