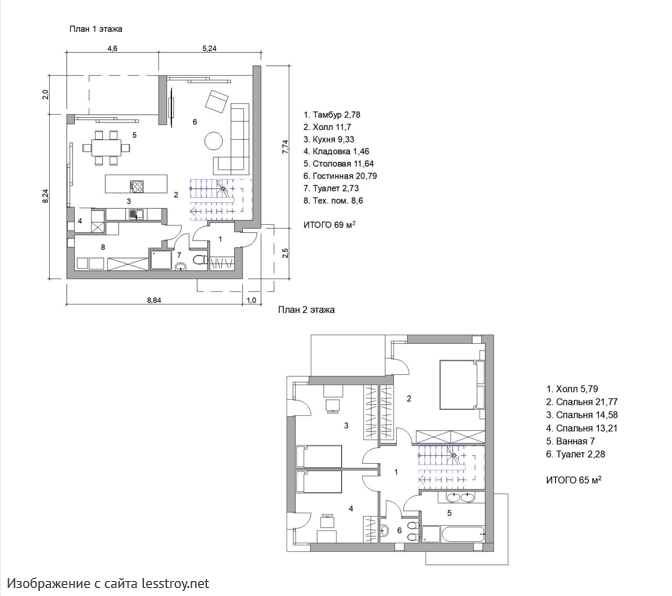
Проект двухэтажного дома Проект S-134
Площадь
134 м 2
Размер дома:
9x9
Этажей:
2
Спален:
3
Санузел:
0
Гараж:
Нет
Баня:
Нет
Терраса:
Нет
Панорамные окна:
Нет
Мастер-спальня:
Нет
О проекте
Проект вдохновлен урбанистикой, но не лишен домашнего тепла.С 100 м² удобно и детям, и взрослым. Архитектура выполнена в стиле дома в классическом стиле. Крыша из металлочерепица подчёркивает современный облик дома. Двухэтажная эргономичная планировка разделяет приватные и общественные зоны.Характеристики
- Общая площадь: 134 м2
- Количество этажей: 2
- Стиль, разновидность: Дома в ином стиле
- Форма: Квадратные дома
- Тип кровли: Дома с плоской крышей
- Отделка: Без отделки
- Размер: 9x9
Отправьте свои контакты и мы расчитаем вам смету
Скорее всего вам подойдут следующие проекты домов:
Дом подходит для:
Дом подходит для:
Проект двухэтажного дома №164-1
Семья с двумя детьми
Дом подходит для:
Дом подходит для:










